Evacify

Evacuation Diagrams for Australian & US Compliance

We support fire safety companies, consultants, and compliance teams with clear, standards-aligned evacuation diagrams delivered quickly and consistently.

Built for white-label workflows • AS 3745 & OSHA aligned • Fast turnaround

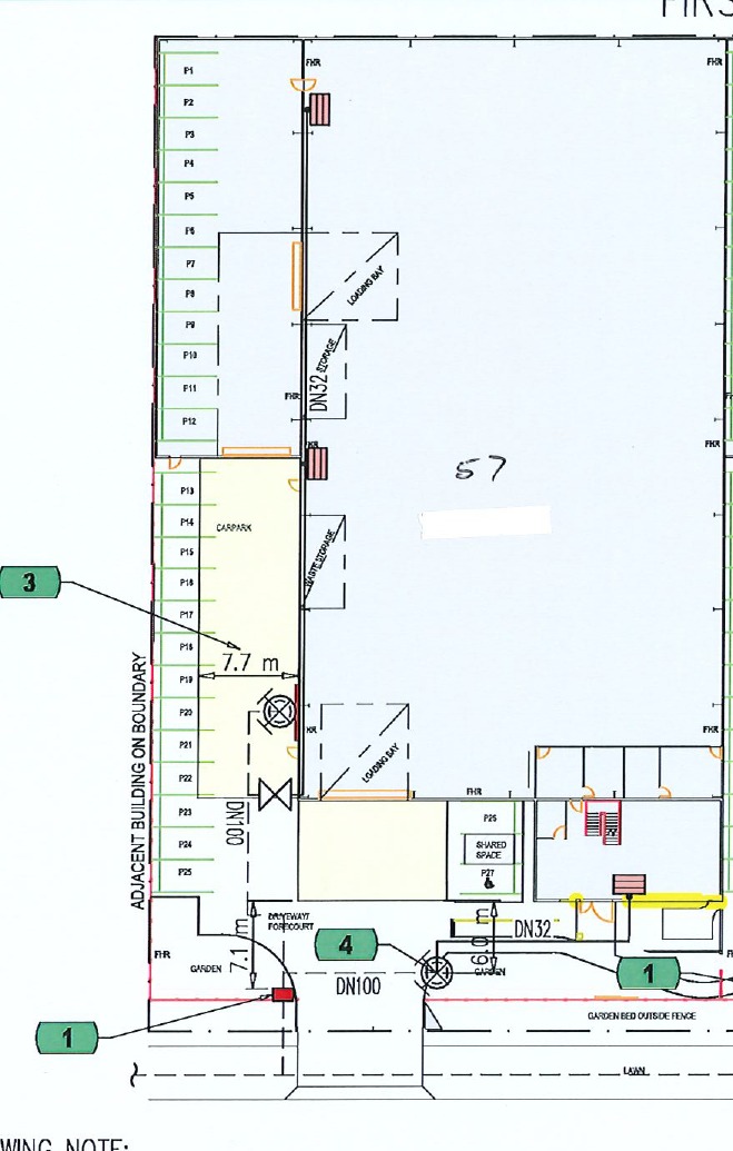
Detailed evacuation diagram showing emergency routes, symbols, and building layout.

Real evacuation diagram sample from completed client work.

15+ Years Experience Serving AU & US Clients White-label Trusted by Firms Fast Turnaround

A Reliable Backend for Diagram Delivery

We help B2B teams remove production bottlenecks and deliver compliant diagrams with consistent quality.

Common bottlenecks we solve

  • Limited in-house drafting/design capacity
  • Inconsistent quality across urgent projects
  • Slow turnaround on multi-site work
  • Pressure to meet compliance expectations

Who we work with

  • Fire safety & compliance companies
  • Building consultants and engineering teams
  • Contractors and property managers
  • Firms needing white-label diagram delivery

Structured, Compliance-Grade Output

Every plan is designed for readability, operational use, and confidence during audits and inspections.

Evacuation Diagrams

  • Clear exit routes and emergency paths
  • “You Are Here” positioning
  • Assembly areas and emergency instructions
  • Designed for real-world readability

Fire Safety Block Plans

  • Fire hydrant layouts
  • Alarm system layouts
  • Sprinkler coverage diagrams
  • Equipment positioning with clean visual hierarchy

White-Label Support

  • Delivered under your brand
  • NDA-friendly workflows
  • Consistent quality across all projects
  • Scalable output for growing teams

Proof of Quality Across Real Projects

Use this section to show measurable improvements and technical clarity from your delivered diagrams.

Before / After

Before / After Comparison

Before
Original client evacuation layout before redesign.
Original client-supplied plan.
After
Final Evacify evacuation diagram after redesign and compliance cleanup.
Final Evacify-compliant diagram.
Commercial Layout

Complex Commercial Layout

Complex commercial evacuation diagram with detailed room structure and emergency guidance.
Complex commercial evacuation layout delivered for operational use.
Multi-floor Plan

Multi-Zone Facility Diagram

High-detail multi-zone evacuation diagram with clear route hierarchy and compliance signage.
Multi-zone diagram designed for audit confidence and readability.

Operational Value for Compliance Teams

We plug directly into your workflow when delivery pressure is high and consistency matters.

Overflow Project Support

When your team is overloaded, we handle additional diagrams without interrupting your delivery timelines.

Backend Design Capability

If you do not have in-house drafting capacity, we act as your dependable production backend.

Standardized Output Quality

For multi-site portfolios, we maintain consistent visual standards across every delivered diagram.

Why Teams Keep Working With Evacify

  • 15+ years of specialized evacuation diagram experience
  • Fast turnaround (24–48 hours for most plans)
  • Consistent quality across single and multi-site projects
  • Strong understanding of AS 3745 & OSHA requirements
  • Simple revisions and responsive communication
  • Built for long-term white-label partnerships

15+Years in specialist diagram delivery

24–48hTypical turnaround window

AU + USCompliance-focused service coverage

Simple, Fast, Reliable

1

Send your plan

Floor plan, sketch, or markups—whatever you have.

2

We design your diagram

Clean, compliant, and ready for use.

3

Review & finalize

Quick revisions if needed, then final delivery.

Flexible for One-Off Projects or Ongoing Work

Whether you need one evacuation diagram or recurring white-label support, pricing is tailored to scope, complexity, and volume.

Bulk work and long-term partnership options are available.

Project pricing is shared privately based on requirements.

Send a Plan and Get a Quick, Professional Quote

Send us your floor plan or sketch and we will convert it into a professional evacuation diagram aligned to your compliance workflow.